国务院
省政府
市政府
微信
|
闽政通
|
注册
注册
|
登录
登录
你好,{{loginInfo.showname}}
注销
网站支持IPV6
首页
政务公开
政府信息公开
最新文件
人事信息
财政资金
数据开放
统计信息
专题专栏
政策文件库
政策文件库
解读回应
政策解读
回应关切
网上办事
网上办事大厅
便民服务
主题领域
公众参与
智能问答
智能问答
12345平台
在线访谈
网上调查
意见征集
公众留言分析
概况信息
今天是:
搜索
搜索
关闭
历史搜索:
热门搜索:
关闭
长者模式
退出长者模式
无障碍浏览
当前位置:
首页
>
政务公开
>
规划计划
>
区域规划
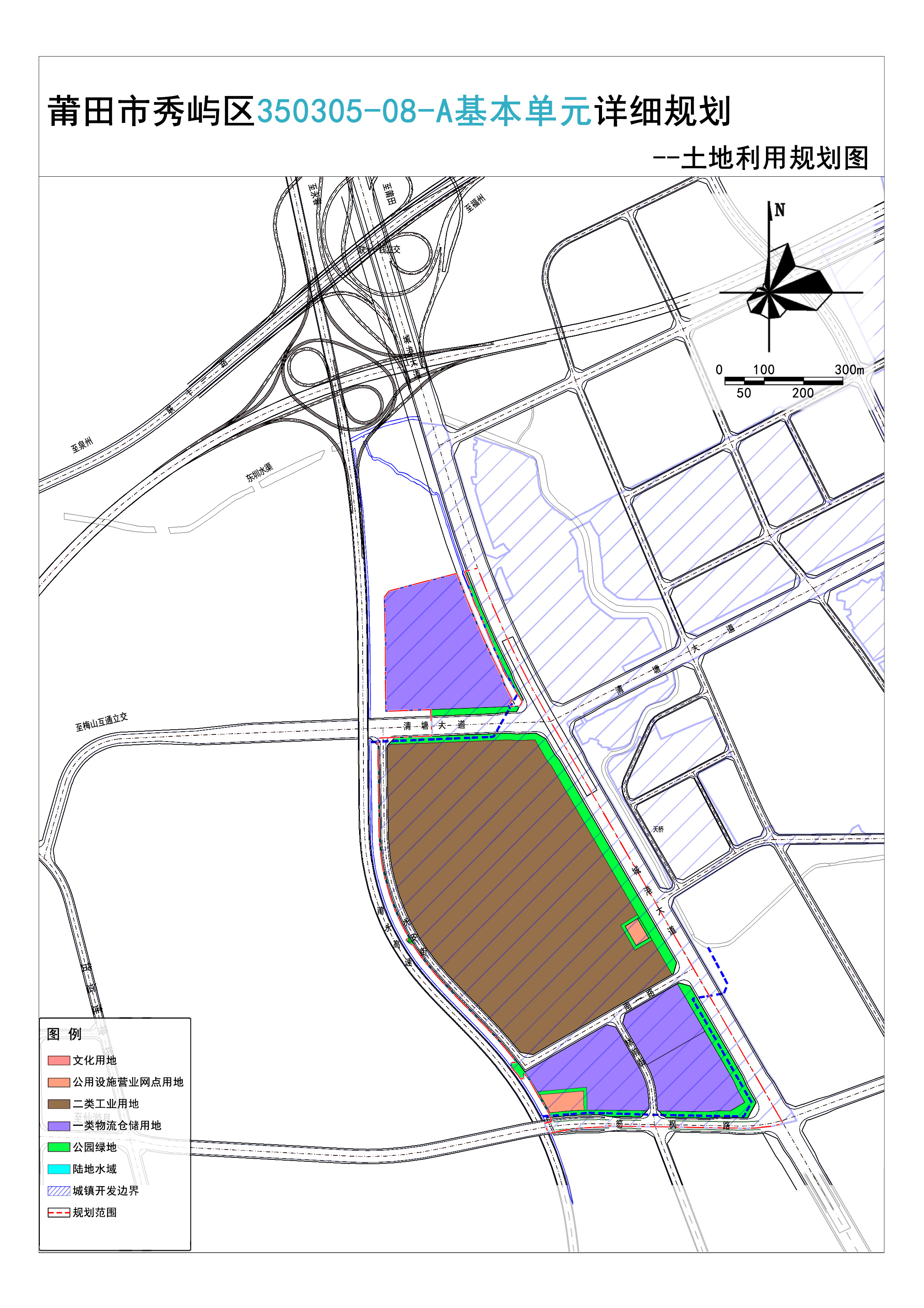
关于《莆田市秀屿区350305-08-A基本单元 详细规划》(草案)的公示
来源:莆田市秀屿区自然资源局
时间:2025-03-04 15:18
|
|
|
|
公示期从2025年3月4日至2025年4月2日,已结束
扫一扫在手机上查看当前页面
附件下载:
规划图.jpg
相关链接:
评论
评论
关闭